Past Projects
'New Build 2 Bedroom Terrace – Whitley Bay
Our inspiring client here found a piece of land for sale at a very reasonable price right in the town centre of Whitley Bay. Nobody believed us at the start but we managed to fit a spacious 2 Bedroomed terraced property into the back yard of the existing properties of the terrace – with room for off street parking too! All built within 3 months from Plans to Completion. This project truly reflects the pace of timber framed building which was particularly important for this site with tight site constraints and challenging neighbours. The local authority were so impressed by the quality of the design and build that we are nominated for the best individual dwelling in the LABC awards.
'Orangery' - Warkworth
Here our client requested a 'party' and 'family' room. We developed an extension that matched the historic surroundings, detailing stonework and fenestration which compliment the existing building that has some prominent features. Our client loved the huge atrium rooflight that despite its size gives this design impressive architectual merit. We were proud to learn the room was used as a wedding venue for one of the family.
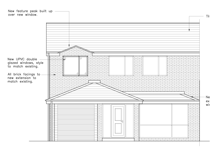
'Typical Semi Extension' - Ellington
This extension is typical of many of our clients on housing estates throughout the region. We made this one stand out with a feature peak to the front elevation and internally provided a vaulted ceiling to create a large 'airy' environment. This extension was completed from start to finish within 8 weeks due to the timber frame construction methods adopted!
'Bespoke Bungalow' - Newton on the Moor
This 1930's bungalow was showing it's age but our client contacted us with some great ideas. We ditched the conservatory and created a flowing 'hip' end to the existing gable creating a spectacular one off kitchen extension. Some detailed stonework and replacing the roof tiles this dwelling is now a real eyecatcher in the village




